N5
N5




















































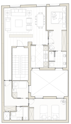
Intervención en apartamento de 85 m2 en el barrio de Salamanca, Madrid.
La vivienda se proyecta con el objetivo de mejorar la organización de los espacios que contaban con una distribución anticuada y compartimentada, lo que generaba una sensación de casa oscura y pequeña. Se cambia por completo su configuración y se actualiza el apartamento priorizando la optimización de los espacios y los huecos en fachada de manera que resulte un lugar amplio, cómodo y luminoso donde vivir. Con un presupuesto justado se cuidan los detalles para conseguir una sensación espacial de bienestar y confort apta para diferentes perfiles de inquilinos.
Madrid, España. 2023
Piso de alquiler
Particular
85 m2
Se modifica el uso urbanístico de un local de 27 m2 en la planta baja de un edificio residencial del barrio de Delicias, para transformarlo en apartamento turístico mediante un acceso directo e independiente desde la calle.
Se tramita un proyecto de estudio abierto pero que incluye todo lo necesario para desarrollar la actividad de vivienda turística pero que resulta un espacio amplio y funcional.
Madrid, España. 2023
Piso de alquiler
Particular
85 m2
ESTADO ORIGINAL
ESTADO REFORMADO